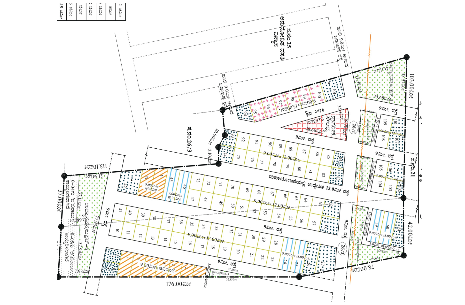
SPA Approved Layout Spread Across 6.22 Acres – A Safe & Smart Investment for Your Future.
Sira Homes is a meticulously planned residential layout spread across 6.22 acres in Kallu Kotte, Sira. Fully approved by the Sira Planning Authority (SPA), this project ensures a safe and legally secure investment for your family. We offer a variety of plot sizes including 30×40, 30×50, and 30×60, designed with wide roads and modern infrastructure to provide long-term value and peace of mind.
Standard Plots: 30′ x 40′ (1200 Sq.Ft) – Total 71 Units
Premium Plots: 30′ x 50′ (1500 Sq.Ft) – Total 06 Units
Luxury Plots: 30′ x 60′ (1800 Sq.Ft) – Total 06 Units
Odd Sites: Custom Sizes – Total 18 Units
